Hỗ trợ tư vấn
Tư vấn - Giải đáp - Hỗ trợ đặt tài liệu
Mua gói Pro để tải file trên Download.vn (không bao gồm tài liệu cao cấp) và trải nghiệm website không quảng cáo
Tìm hiểu thêm »Giải Công nghệ 8 Bài 5: Bản vẽ nhà giúp các em học sinh lớp 8 tham khảo, biết cách trả lời toàn bộ câu hỏi trong sách giáo khoa Công nghệ 8 Cánh diều trang 25, 26, 27, 28.
Với lời giải trình bày rõ ràng, dễ hiểu nhằm giúp học sinh nhanh chóng biết cách làm bài. Đồng thời, cũng giúp thầy cô thuận tiện trong việc hướng dẫn học sinh ôn tập Bài 5 Chủ đề 1: Vẽ kĩ thuật. Vậy chi tiết mời thầy cô và các em cùng theo dõi bài viết dưới đây của Download.vn nhé:
Đọc bản vẽ nhà Hình 5.3 theo trình tự các bước ở Bảng 5.2.

1. Khung tên
Tên gọi ngôi nhà: Nhà mái bằng 1 tầng.
Tỉ lệ bản vẽ: 1:50
Nơi thiết kế: Công ty xây dựng dân dụng
2. Hình biểu diễn
Tên gọi các hình biểu diễn của ngôi nhà: Mặt đứng, mặt bằng, mặt cắt.
Vị trí đặt các hình biểu diễn:
Mặt đứng ở vị trí hình chiếu đứng.
Mặt bằng ở vị trí hình chiếu bằng.
Mặt cắt ở vị trí hình chiếu cạnh.
3. Kích thước
Kích thước chung của ngôi nhà: 13800 x 7800 x 4500
Kích thước của từng phòng:
Phòng khách: 5700 x 3600 mm
Phòng ngủ 1: 4650 x 4000 mm
Phòng ngủ 2: 4650 x 4000 mm
Bếp + phòng ăn: 5100 x 3600 mm
Phòng vệ sinh: 3300 x 1500 mm
Hiên nhà: 7800 x 1600 mm
Sân nhà: 7800 x 1400 mm
Kích thước của từng loại cửa:
Cửa đi đơn 4 cánh: 2200 x 1600 mm
Cửa đi đơn 1 cánh (phòng ngủ): 800 mm
Cửa đi đơn 1 cánh (phòng vệ sinh): 700 x 650 mm
Cửa sổ đi đơn 2 cánh: 1300 mm
Cửa sổ đi đơn 2 cánh (nhà vệ sinh): 600 mm
4. Các bộ phận chính của ngôi nhà
Số phòng: 5 phòng
Số lượng cửa đi, cửa sổ: cửa đi: 5 cái, cửa sổ: 5 cái
Loại cửa được sử dụng: cửa đi đơn 4 cánh, cửa đi đơn 1 cánh, cửa sổ đi đơn 2 cánh.
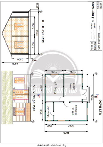
Sưu tầm của một bản vẽ nhà đơn giản và đọc bản vẽ đó.
Lời giải

1. Khung tên
- Nhà một tầng
- Tỉ lệ 1:150
- Công ty xây dựng....
2. Hình biểu diễn
- Mặt bằng
- Mặt đứng A - A
- Mặt cắt B - B
3. Kích thước
- Kích thước chung: Dài 7700, rộng 7000, cao 5200 (tính cả chiều cao nền nhà).
- Kích thước từng bộ phận:
4. Các bộ phận chính
- Ba phòng.
- 1 cửa đi đơn 2 cánh; 3 cửa đi 1 cánh; 7 cửa sổ đơn.
- Bậc thềm (2 bậc).
Theo Nghị định 147/2024/ND-CP, bạn cần xác thực tài khoản trước khi sử dụng tính năng này. Chúng tôi sẽ gửi mã xác thực qua SMS hoặc Zalo tới số điện thoại mà bạn nhập dưới đây: