Hỗ trợ tư vấn
Tư vấn - Giải đáp - Hỗ trợ đặt tài liệu
Mua gói Pro để tải file trên Download.vn (không bao gồm tài liệu cao cấp) và trải nghiệm website không quảng cáo
Tìm hiểu thêm »Giải Công nghệ 8 Bài 3: Bản vẽ chi tiết giúp các em học sinh lớp 8 tham khảo, biết cách trả lời toàn bộ câu hỏi trong sách giáo khoa Công nghệ 8 Kết nối tri thức với cuộc sống trang 20, 21, 22, 23.
Với lời giải trình bày rõ ràng, dễ hiểu nhằm giúp học sinh nhanh chóng biết cách làm bài. Đồng thời, cũng giúp thầy cô thuận tiện trong việc hướng dẫn học sinh ôn tập Bài 3 Chương I: Vẽ kĩ thuật. Vậy chi tiết mời thầy cô và các em cùng theo dõi bài viết dưới đây của Download.vn:
Quan sát Hình 3.3 và cho biết tên gọi của chi tiết được biểu diễn trong hình là gì; hãy mô tả hình dạng, kích thước và các yêu cầu kĩ thuật của chi tiết đó.

Trả lời:
- Tên gọi chi tiết: đầu côn
- Hình dạng: nón cụt
- Kích thước:
- Yêu cầu kĩ thuật: làm tù cạnh, mạ kẽm.
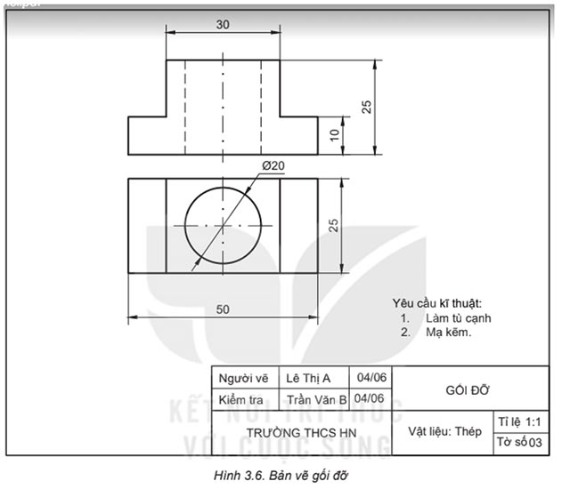
Đọc bản vẽ chi tiết gối đỡ (Hình 3.6) theo trình tự trên Bảng 3.1.

Trả lời:
|
Trình tự đọc |
Nội dung đọc |
Kết quả đọc bản vẽ gối đỡ |
|
Bước 1. Khung tên |
- Tên gọi chi tiết - Vật liệu chế tạo - Tỉ lệ bản vẽ |
- Gối đỡ - Thép - Tỉ lệ: 1 : 1 |
|
Bước 2. Hình biểu diễn |
Tên gọi các hình chiếu |
Hình chiếu đứng, hình chiếu bằng |
|
Bước 3. Kích thước |
- Kích thước chung của chi tiết - Kích thước các phần của chi tiết |
- Chiều dài: 50; chiều rộng: 25; chiều cao: 25 - Khoét: đường kính 20 mm |
|
Bước 4. Yêu cầu kĩ thuật |
Yêu cầu về gia công, xử lí bề mặt |
Làm tù cạnh, mạ kẽm |
Theo Nghị định 147/2024/ND-CP, bạn cần xác thực tài khoản trước khi sử dụng tính năng này. Chúng tôi sẽ gửi mã xác thực qua SMS hoặc Zalo tới số điện thoại mà bạn nhập dưới đây: